3110 Pattiz Ave
Long Beach, CA 90808

Scroll to Content

Details

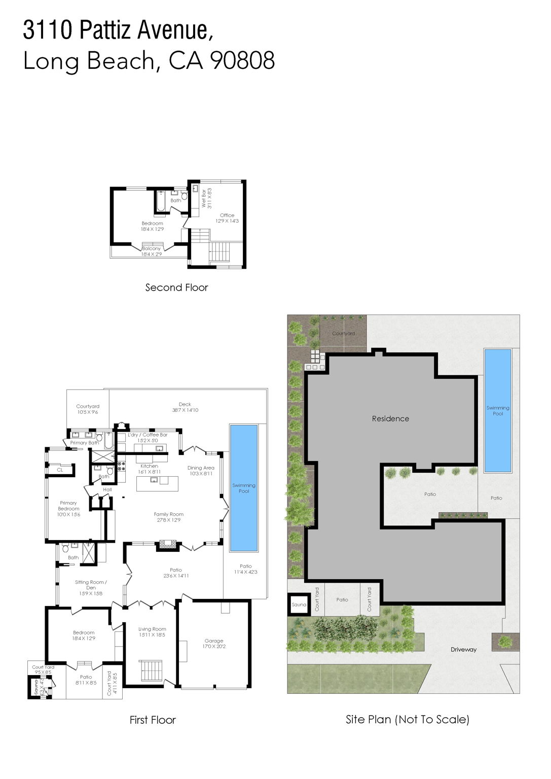
A rare and remarkable interpretation of Cliff May’s vision, this expanded Rancho Estates residence pushes the boundaries of classic California modernism while preserving every ounce of its soul. Nearly 2,300 square feet of thoughtfully designed space unfold across two levels, offering a flexible and functional floor plan that lives large without losing the intimacy and indoor-outdoor harmony that define May’s work. Here, space is never a compromise, it’s a celebration. The home’s post and beam architecture creates distinct zones for connection and retreat, with 3 spacious bedrooms, 3.5 baths, a dedicated office / creative space, and 3 versatile living areas. The flow is effortless: a formal living room, den, and expansive great room each open directly to the central courtyard, where sunlight and firelight blur the boundaries between inside and out. A minimalist chef’s kitchen with a quartz-topped island anchors the main living space, ideal for both daily life and entertaining, while a well-appointed butler’s pantry and laundry area with additional sink and counter space adds everyday practicality. Each room extends into its own outdoor experience, amplifying the home’s connection to nature. The upstairs suite features a sunny private balcony, the front bedroom opens to a tranquil meditation garden and infrared sauna, and the great room connects to an ipe deck built for entertaining, a glowing central courtyard with firepit and a striking heated lap pool. The home’s expansion delivers not just square footage but an elevated lifestyle: a serene primary suite with dual closets and ensuite full bath, a flexible upstairs wing with kitchenette and balcony perfect for guests or your creative makerspace. Presenting a truly turnkey opportunity, countless modern upgrades elevate the appeal of this special property: owned solar, EV charging station, tankless water heater, advanced water purification and softening systems, outdoor audio system, security system, modern central HVAC with ductless mini-splits, upgraded pool equipment, and creative built-in storage solutions. Set on a tree-lined and tranquil street just moments from the 800-acre El Dorado Park and nature preserve, 3110 Pattiz Ave embodies the Rancho Estates ethos: architectural authenticity, a deep connection to the outdoors, and a lifestyle that’s both relaxed and refined. This is where mid-century design meets modern life and where space, style, and soul come beautifully together.

  • $1,895,000
  • 3 Bedrooms
  • 4 Bathrooms
  • 2,288 Sq/ft
  • Lot 0.13 Acres
  • 4 Parking Spots
  • Built in 1954
  • MLS: PW25230957

Images

3D Tour

Videos

Floor Plans

Floorplan #7
Complete Floor Plan
1st Floor
2nd Floor